本倉庫は内装・レイアウトを固定せず、商材や物量、作業内容に応じた運用設計が可能です。
条件未確定の段階でも、状況に応じたご提案を行います。倉庫選定の初期段階から、お気軽にご相談下さい。
物流センター大阪東
お電話でのお問い合わせは SBSネクサード(株)営業開発本部 第一営業統括部
受付:平日 9:00-17:45
TEL
050-1753-0600
空き坪数:6,000坪


2024年11月 大阪府八尾市に、SBSネクサードグループの関西エリア大型拠点が誕生!
大阪市内至近、近畿道すぐ!港・空港アクセスも1時間以内の好立地
東大阪南ICまで約2.5km、大阪市中心部は10km圏内、大阪港から約40分、関西国際空港から約60分と、府内のラストワンマイルも国際貨物にも便利な立地です。
精密機器・OA機器・雑貨・化粧品など、幅広い業種に対応可能な汎用型拠点
施設には、荷下ろし時に雨を防げる屋根付きのバース完備、1階は地面直結シャッター構造で、ツーマン配送を要する重量物や精密機器にも対応。
小口から全国まで。多頻度出荷・ラストワンマイルに強い配送拠点
東大阪トラックターミナルまで約5km、全国配送・混載ネットワークとの連携もスムーズ。1Fに個口配送ターミナルを備え、共同配送やツーマン配送の拠点として活用OK。
繊細な商品の加工もおまかせ。人材確保に優れ、安定稼働が可能
化粧品やキャラクター雑貨などの出荷・加工実績も豊富。検品やセット組みにも柔軟対応し
364日稼働&柔軟運用。一時保管や納品調整にも対応
通販にニーズの高い364日稼働体制に加え、3・4階は一時保管やセンター前センターとしての活用も可能。波動や納品調整にも柔軟に対応できます。
バーチャルツアー
レイアウトは自由!お客様の取り扱い商材や用途に合わせ、柔軟な対応が可能です。
要件についてご相談いただければ、最適な物流設計を行い、効率的な運用をご提案いたします。
施設概要
| 名 称 | 物流センター大阪東 |
|---|---|
| 住 所 | 大阪府八尾市泉町三丁目31番 |
| 構 造 | 地上4階、鉄骨造 |
| 敷地面積 | 4,795.23坪 (15,852.02m2) |
| 使用スペース |
7,991.09坪 (26,416.82m2) ≪内訳≫ 倉庫:7603.31坪(25,134.91m2) / 事務所:387.78坪(1281.91m2) |
| 梁下有効高(天井高) | 倉庫:5.5m |
| 床荷重 | 倉庫:1.5t/m2 |
| トラックバース | 1階 約14台(10t車)、ドックレベラー 3基 |
| 搬送機器 | 貨物用エレベータ:3.5t×2基、垂直搬送機:1.5t×2基 |
| セキュリティー | 倉庫全体、機械警備・監視カメラ |
| アピールポイント | ・大阪を含む近畿一円はもちろん、中部・北陸・中四国地方いずれの方面も道路アクセスが非常に優れています。 ・公共交通機関も鉄道3駅からバスが運行しており、利便性の高い場所です。 ・近鉄大阪線 八尾駅 または 近鉄奈良線 若江岩田駅から、バスと徒歩で約15分! ・敷地内に乗用車駐車場約55台有り。 ・八尾市はものづくりの街として栄え、大阪中心部にも近い為、雇用確保も優位。 |
この物流センターの倉庫詳細ページはこちら
施設画像






交通アクセス
大阪市内至近、近畿道すぐ! 港・空港アクセスも1時間以内で、府内のラストワンマイルや国際貨物にも便利な好立地です。
車 :近畿自動車道 東大阪南ICから約2.5km。(40フィートコンテナの乗り入れが可能!)
電車:近鉄奈良線 若江岩田駅より徒歩25分。
バス:近鉄大阪線 八尾駅 / 近鉄奈良線 若江岩田駅 / 近鉄けいはんな線 荒本駅 からそれぞれ路線バスが発着。近鉄バス「西郡西口」バス停より徒歩3分。
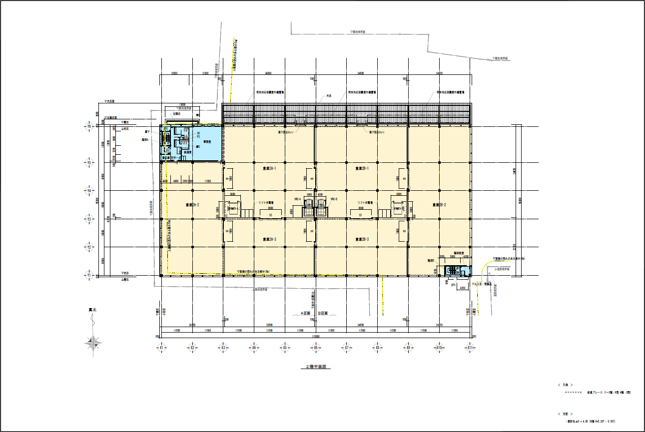
配置・平面図・立面・断面図
配置図
平面図
立面図
断面図
よくあるご質問(FAQ)
「物流センター大阪東」に関して、よくいただくご質問とその回答をご紹介いたします。
SBSネクサードの物流サービス&ソリューション
SBSネクサードのセンター運営事例
この物流センターの倉庫詳細ページはこちら
物流センター大阪東についてのお電話でのお問合せは、
SBSネクサード(株) 営業開発本部 第一営業統括部
お問い合わせ電話番号:050-1753-0600(受付:平日 9:00-17:45) までお問い合わせください。
こちらもチェック! 毎月更新!SBSネクサードの『おすすめ倉庫情報』
現在特におすすめの物流倉庫はこちらでご覧いただけます。
人気で埋まってしまう前に、お早めにどうぞ!























